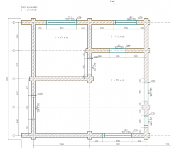
Дом утеплен 100 мм эковатой, построен на бетонном фундаменте. Высота потолков 2,9 метра
Просторная терраса позволяет наслаждаться видами Горного Алтая
Дом может быть выполнен с панорамным остеклением
Выбор местоположения
Мы свяжемся с Вами в течение дня.