Гармония – это отличный двухэтажный дом из СИП панелей, который идеально подойдет в качестве гостевого летнего домика или дачи. Проект имеет жилую площадь почти 80 м2, 4 спальни, 2 санузла и просторную кухню-гостиную.
На летний формат здесь намекает отсутствие тамбура, большие балкон и терраса, много окон. Впрочем, планировка универсальна и можно без проблем превратить холл-прихожую в тамбур. Все что для этого нужно – установить дополнительную стену и дверь сразу за входом в техническое помещение.
Внутренняя планировка проста и удобна. Сразу после входа просторных холл на 10,28 м2, из которого можно попасть в техническое помещение (5,04 м2), санузел (3,76 м2), спальню (7,62 м2) и кухню-гостиную. В холле также расположена лестница на второй этаж. Отметим тот факт, что вход в спальню расположен возле лестницы, что и позволяет легко обустроить тамбур в доме.
Кухня-гостиная имеет площадь более 20 м2 и здесь сразу 4 больших окна и стеклянная дверь, которая выходит на своеобразное крыльцо. Такое расположение входов не типично для наших широт. Обычно из гостиной есть выход на террасу, а в «Гармонии» терраса расположена у основного входа в дом, а из гостиной можно выйти на крыльцо.
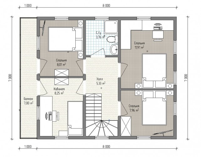
Второй этаж имеет классическую планировку – холл (5,33 м2), санузел (3,76 м2) и 4 комнаты. Три спальни (8,01 м2, 7,96 м2 и 11,91 м2) и кабинет площадью 8,25 м2. Из кабинета и одной из спален есть выход на балкон.
Отметим также, что техническое помещение, кухня и два санузла расположены по соседству, что сокращает длину коммуникаций до минимума.
Выбор местоположения
Мы свяжемся с Вами в течение дня.